After コメント&データ Comments & data 施主コメント リフォームの目的と要望 和室と洋室を一部屋にして、夫婦2人でのこれからの生活が快適になるようにしたかった。 広々したリビングで、好きな書物や映像を、ワインセラーに収めたお酒を飲みながら楽しめるくつろぎの空間が希望。そこでは、海外で求めた様々な装飾品も眺めたいと思っていた。 施工会社コメント プランのポイント、工夫した点 6畳の和室と5.5畳の和室をつなげリビングを新設。書斎コーナーとして、壁ぴったりの家具を組み込んだ。建具類は全て以前から愛用されていた飾り棚の色を基調に統一。 プラズマテレビを設置するため壁に専用スペースを設計し、配線は壁と天井を二重にしてその間を通した。廊下の採光のため、ガラス面の多い室内ドアを選択。大人のくつろぎ空間となった。 BEFORE AFTER DATA リフォーム部位 趣味・ホームシアター リビング・ダイニング Living & dining room ベッドルーム Bedroom 書斎・趣味室 Study 収納・ウォークインクローゼット Closet 間取り変更 Plan changing リフォームの動機・目的 趣味・ホームシアター リビング・ダイニング Living & dining room ベッドルーム Bedroom 書斎・趣味室 Study 収納・ウォークインクローゼット Closet 間取り変更 Plan changing 実例の所在地 千葉県 築後年数 約30年 リフォーム費用 700万円(税抜き) リフォーム工事期間 約1ヶ月半
コメント&データ Comments & data
施主コメントリフォームの目的と要望
和室と洋室を一部屋にして、夫婦2人でのこれからの生活が快適になるようにしたかった。
広々したリビングで、好きな書物や映像を、ワインセラーに収めたお酒を飲みながら楽しめるくつろぎの空間が希望。そこでは、海外で求めた様々な装飾品も眺めたいと思っていた。
施工会社コメントプランのポイント、工夫した点
6畳の和室と5.5畳の和室をつなげリビングを新設。書斎コーナーとして、壁ぴったりの家具を組み込んだ。建具類は全て以前から愛用されていた飾り棚の色を基調に統一。
プラズマテレビを設置するため壁に専用スペースを設計し、配線は壁と天井を二重にしてその間を通した。廊下の採光のため、ガラス面の多い室内ドアを選択。大人のくつろぎ空間となった。
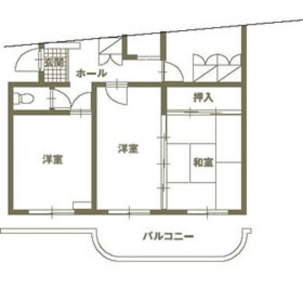
BEFORE
AFTER
DATA