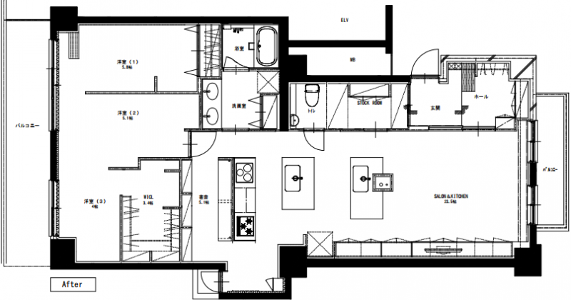
普段から来客の多いご夫婦が望まれた要望が20人近いゲストを招いてホームパーティーが開けるような大空間がほしいことでした。そこにはこだわって選んだイタリア製の長さ2.8mのテーブルを置きたいということでした。 そのためには寝室などのプライベート空間はあえてコンパクトにまとめ、住まいの顔である玄関ホールを広く取り、エントランス収納もたっぷりと確保。キッチンを囲んでゲストとの会話が楽しめるようアイランドカウンターを含む調理台を3台設けるものでした。 リビング・ダイニング Living & dining room コメント&データ Comments & data 施主コメント リフォームの目的と要望 このサロンや玄関などのパブリック空間全体の基調を白とする事でモダンな印象に、寝室などのプライベート空間は濃茶をベースにアジアンリゾートな雰囲気にと、色のトーンを変えることで住み分けを図り、華やぎと落ち着きを兼ね備えた住まいとなり満足です。 施工会社コメント プランのポイント、工夫した点 構造上移動不可能であった配管スペースの柱にはタイルを貼りめぐらせてサロンのシンボルに。マンション特有の大きな梁も計画的に間接照明を設置することで洗練された表情のある大空間のキッチンサロンとなりました。 BEFORE AFTER DATA リフォーム部位 デザインリフォーム 収納 全面改装・リノベーション 間取り変更 リビング・ダイニング Living & dining room キッチン Kitchen 浴室・洗面脱衣室 Bathroom トイレ Toilet ベッドルーム Bedroom 書斎・趣味室 Study 収納・ウォークインクローゼット Closet 玄関まわり Entrance 全面改装・リノベーション Full renovation 間取り変更 Plan changing リフォームの動機・目的 デザインリフォーム 収納 全面改装・リノベーション 間取り変更 リビング・ダイニング Living & dining room キッチン Kitchen 浴室・洗面脱衣室 Bathroom トイレ Toilet ベッドルーム Bedroom 書斎・趣味室 Study 収納・ウォークインクローゼット Closet 玄関まわり Entrance 全面改装・リノベーション Full renovation 間取り変更 Plan changing 実例の所在地 埼玉県 築後年数 30年 リフォーム費用 非公開 リフォーム工事期間 3ヶ月
コメント&データ Comments & data
施主コメントリフォームの目的と要望
このサロンや玄関などのパブリック空間全体の基調を白とする事でモダンな印象に、寝室などのプライベート空間は濃茶をベースにアジアンリゾートな雰囲気にと、色のトーンを変えることで住み分けを図り、華やぎと落ち着きを兼ね備えた住まいとなり満足です。
施工会社コメントプランのポイント、工夫した点
構造上移動不可能であった配管スペースの柱にはタイルを貼りめぐらせてサロンのシンボルに。マンション特有の大きな梁も計画的に間接照明を設置することで洗練された表情のある大空間のキッチンサロンとなりました。
BEFORE
AFTER
DATA